
Echipamente de Salvare pentru Spații Închise
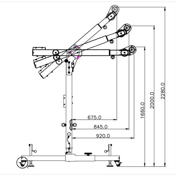
1. Sistem Davit Kratos EasySafeWay 1
- Sistemul mobil Davit, cu bază în H EasySafeWay 1 de la Kratos este utilizat pentru acces în spații închise cu deschidere largă
- Cuprinde: coloană Davit cu înălțime de 1370 mm, braț Davit și bază în H
- Baza în H este echipată cu picioare ajustabile și nivele cu bulă pentru poziționare corectă
Baza în H | Deschidere min. Ø 1100 mm / Deschidere max. Ø 1510 mm |
Brațul Davit este ajustabil pe 3 nivele de înălțime | 1.66 m / 2.0 m / 2.28 m |
Material | Aluminiu |
Greutate | 62 kg |
Capacitate maximă de încărcare | 500 kg |
Certificări | EN 795:2012 tip B |
Rezistența punctelor de ancorare | > 12 kN |
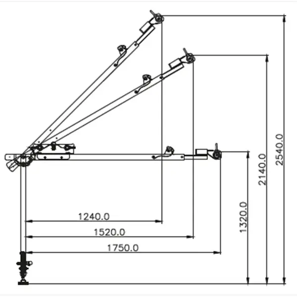
2. EASYSAFEWAY 2: Palan stâlp pentru intrarea, recuperarea și salvarea în spațiu închis
Pentru acces în spații închise, în combinație cu un troliu de lucru și de salvare sau un dispozitiv de prevenire a căderii retractabil cu funcție de salvare, în zonele în care sistemele obișnuite de ancorare nu pot fi utilizate din cauza constrângerilor limitate de înălțime.
- Ochiul pivotant la capătul brațului de ridicare a stâlpului pentru a fi utilizat pentru a fi atașat la un punct de ancorare (conform cu EN 795:2012).
- Baza cu tampoane reglabile pe înălțime pentru nivelarea sistemului la sol.
- Poate fi folosit pentru accesul prin lateral în spații închise.
- Brațul de ridicare a stâlpului este reglabil la 3 înălțimi definite:
» 1,32 m / 2,14 m / 2,54 m (braț neextins),
» 1,32 m / 2,54 m / 3,14 m (braț extins).
Material | Aluminiu |
Greutate | 13,20 kg |
Încărcare maximă | 500 kg |
2.1 EASYSAFEWAY 2: Adaptor pentru troliu de lucru și salvare
Pentru a monta troliul de lucru și de salvare care se instalează pe brațul davit al sistemului EasySafeWay 2.
Material | Oțel |
Greutate | 3.15 kg |
2.2 EASYSAFEWAY 2: Adaptoare universale pentru opritoare de cădere retractabile cu funcție de salvare
Pentru a monta opritoare de cădere retractabile cu funcție de salvare pe brațul davit al sistemului EasySafeWay 2.
Material | Oțel |
Greutate | 6.71 kg |
2.3 EASYSAFEWAY 2: Ancora pole hoist, pentru acces lateral în spații închise
Punct de ancorare pentru sistemul de ridicare EASYSAFEWAY 2 pentru a accesa navele și rezervoarele cu intrare laterală.
- Oferă recuperare și protecție împotriva căderii atunci când este disponibil un spațiu limitat deasupra capului.
- Simplu de instalat folosind dispozitivele de fixare existente pe flanșă.
- Poate fi folosit pentru intrare verticală și orizontală.
- Poate fi folosit și ca punct de ancorare unic.
Material | Aluminiu |
Greutate | 6,25 kg |
Capacitate maximă de încărcare | 500 kg |
3. Tripod Kratos
- Tripod Kratos, înălțime maximă 7 feet pentru acces în spații închise
- Cu 2 scripete montate la capul tripodului, în prelungirea piciorului principal pentru a permite trecerea unui cablu
- Cu 2 șuruburi inel auxiliare ca puncte de ancorare
- Cap turnat din aliaj de aluminiu, picioare din aluminiu
- Picioare cu tălpici din oțel prevăzute cu cauciuc pentru a crește aderența și stabilitatea
- Rezistența punctului de ancorare mai mare de 12 kN
- Cu geantă pentru transport
Înălțime ajustabilă | De la 1.15 m până la 2.15 m |
Ampatament | De la 1.08 m până la 1.62 m |
Greutate | 14.3 kg |
Capacitate maximă de încărcare | 500 kg sub cap / 250 kg pe picior |
Certificări | EN795:2012 tip B, ATEX Directive 2014/34/EU, Machinery Directive, EN 1808 |
4. Hexapod Kratos
- Oferă acces pentru intrare, salvare și ridicare din spații închise cu deschidere largă aflate sub nivel
- Echipat cu scripete plasat pe capul tripodului pentru inserarea cablului
- Echipat cu 3 inele de ancorare pe capul tripodului
- Cap turnat din aliaj de aluminiu, picioare din aluminiu
- Picioare cu tălpici din oțel prevăzute cu cauciuc pentru a crește aderența și stabilitatea
- Rezistența punctului de ancorare mai mare de 13 kN
- Tripozi cu geantă pentru transport
Înălțime ajustabilă | De la 1.15 m până la 2.15 m |
Ampatament | De la 1.08 m până la 1.62 m (1 tripod) De la 1.80 m până la 4.20 m (între 2 tripozi) |
Greutate | 49.33 kg |
Capacitate maximă de încărcare | 500 kg sub cap / 250 kg pe picior |
Certificări | EN795:2012 type B, TS 16415:2013 Type B, ATEX Directive 2014/34/EU, Machinery Directive, EN 1808 |