
Zárt térben működő mentőrendszerek
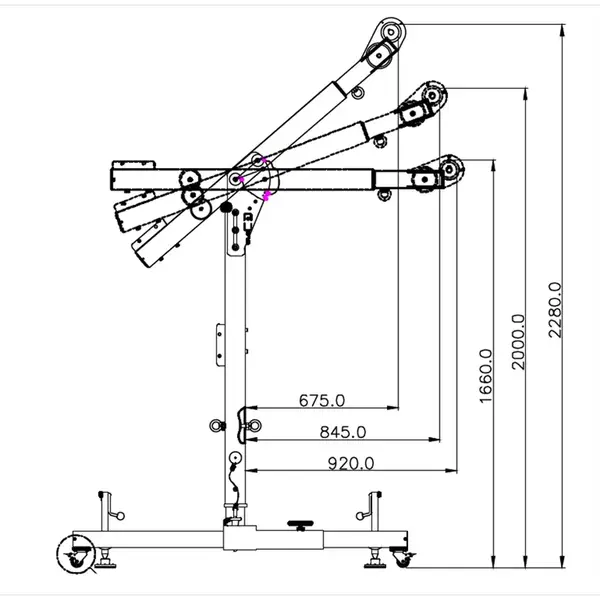
1. KRATOS EasySafeWay 1, Mobil H-alakú darurendszer
- Mobil H-alakú darurendszer a szűk helyeken való hozzáféréshez, nagy nyílással.
- Összetétele: FA 60 105 03 (daru oszlop, magasság 1370 mm), FA 60 105 05 (daru kar) és FA 60 105 06 (H-alakú alap).
- H-alakú alap állítható magasságú lábakkal és vízmértékekkel a karos rendszer megfelelő szintbe állításához.
H-alap | min. nyílás Ø 1100 mm / max. nyílás Ø 1510 mm |
A karos oszlop 3 meghatározott magasságban állítható | 1,66 m / 2,0 m / 2,28 m |
Anyag | Alumínium |
Súly | 62 kg |
Maximális terhelhetőség | 500 kg |
Megfelelés | EN 795:2012 B tipp |
A rögzítési pontok ellenállása | > 12 kN |
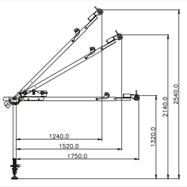
2. EASY SAFEWAY 2: Rúdemelő zárt térbe való belépéshez, visszahúzáshoz és mentéshez
Szűk helyeken való hozzáféréshez, munka- és mentőcsörlővel vagy behúzható zuhanásgátlóval és mentőcsörlővel kombinálva olyan területeken, ahol a korlátozott magassági korlátok miatt nem használhatók szokásos rögzítési rendszerek.
- Az emelőkar végén található a forgószem, amelyet névleges rögzítési ponthoz kell rögzíteni (az EN 795:2012 szabványnak megfelelően).
- Aljzat állítható magasságú talpakkal a rendszer talajhoz igazításához.
- Szűk helyű oldalsó portál furatokhoz használható.
- Az emelőkar 3 meghatározott magasságban állítható:
» 1,32 m / 2,14 m / 2,54 m (nem hosszabbított kar),
» 1,32 m / 2,54 m / 3,14 m (hosszabbított kar).
Anyag | Aluminium |
Súly | 13.20 kg |
Maximális terhelhetőség | 500 kg |
2.1 EASY SAFEWAY 2: Rögzítő készlet munka- és mentési csörlőkhöz
Munka- és mentési csörlők felszereléséhez az EasySafeWay 2 karos darujára.
Anyag | Acél |
Súly | 3.15 kg |
2.2 EASY SAFEWAY 2: Univerzális rögzítőkonzolok behúzható zuhanásgátlókhoz integrált mentőcsörlővel
Beépített mentőcsörlővel ellátott, visszahúzható zuhanásgátlók felszereléséhez az EasySafeWay 2 darukarjára.
Anyag | Acél |
Súly | 6.71 kg |
2.3 Rögzítés az EASY SAFEWAY 2 pólusú emelőhöz, szűk helyeken történő oldalirányú hozzáféréshez
Rögzítési pont az EASY SAFEWAY 2 pólusú emelőrendszerhez biztosít oldalsó megközelítést hajók és tartályok eléréséhez.
- Kihúzás- és leesésvédelmet biztosít, ha korlátozott szabad tér áll rendelkezésre.
- Egyszerűen telepíthető a karimán lévő meglévő csapok segítségével.
- Függőleges és vízszintes belépéshez használható.
- Egyetlen rögzítési pontként is használható.
Anyag | Aluminium |
Súly | 6.25 kg |
Maximális terhelhetőség | 500 kg |
3. KRATOS háromlábú állvány szűk helyeken való hozzáféréshez
- 7 láb magas maxi állvány a szűk helyeken való hozzáféréshez. Két szerelt szíjtárcsával az állvány fején a fő láb meghosszabbításában a kábel átvezetéséhez
- Két tartalék szemescsavarral rendelkezik rögzítési pontként.
- Alumíniumötvözet öntött fej, alumínium lábak.
- Acél tartócipők gumitalppal a súrlódás növelése és nagyobb stabilitás érdekében.
- A rögzítési pont szilárdsága nagyobb, mint 12 kN
- Minden háromlábú állvány rendelkezik beépített rögzítőponttal a csörlők rögzítéséhez.
- Minden állványhoz táska tartozik
Állítható magasságú | 1,15 m-től 2,15 m-ig |
Tengelytávolság | 1,08 m-től 1,62 m-ig |
Súly | 14,3 kg |
Maximális terhelhetőség | 500 kg fej alatt / 250 kg lábon |
Megfelel a | EN795:2012 B tipp, ATEX 2014/34/EU irányelv, gépekről szóló irányelv, 1808-BAN |
4. KRATOS hatlábú állványrendszer: hozzáférési állvány szűk helyekre
- Hozzáférési állványrendszer a belépéshez, mentéshez és zárt térbe való emeléshez, nagy nyílásokkal és a talajszint alatt.
- Az állványfejen elhelyezett csigával felszerelve a csörlő kábelének behelyezéséhez.
- Három rögzítőgyűrűvel van felszerelve az állványfejen
- Öntött állványfej alumínium ötvözetből, alumínium lábak
- A lábak csuklós acéltalppal vannak ellátva, gumi párnákkal a súrlódás és a stabilitás növelése érdekében
- A rögzítési pontok ellenállása > 13 kN
- Minden állványhoz tartozik egy lemez a csörlő felszereléséhez
- Univerzális lemezekkel vagy adaptációs készletekkel kombinálva is használható az önbehúzódó zuhanásgátló beépített mentőcsörlővel történő felszereléséhez.
- Állványok speciális hordtáskával együtt.
Állítható magasságú | 1,15 m és 2,15 m között |
Tengelytávolság | 1,08 m-1,62 m (1 állvány) / 1,80 m-4,20 m (2 állvány között) |
Súly | 49,33 kg |
Maximális megengedett terhelés | 500 kg fej alatt / 250 kg lábon |
Megfelelőség | EN795:2012 B típus, TS 16415:2013 B típus, ATEX 2014/34/EU irányelv, gépekről szóló irányelv, 1808-BAN |